El Render es una magnífica herramienta para visualizar como será el proyecto una vez construido. Tenemos la virtud de que los proyectos una vez terminados tengan una similitud casi al 100%. Desde luego si en el proceso de la obra surge alguna modificación que mejore el proyecto, este se realiza.
Fachada Terminada. La similitud con el Render es impresionante. Predominan acabados de Cantera gris, Teja, Aluminio natural brillante, Cristal, Aplanados blancos.
En el detalle sobresalen 4 cubos (ventanas) que corresponden al vestidor.
Acceso Peatonal con acabado cerámico en negro.
Detalle de Parteluces en el acceso.
Amplio acceso de distribución. Escaleras empotradas en muro.
El espacio de la Sala / Cocina-Comedor están comunicados entre si. Se crean espacios amplios y de alturas generosas lo que le da a la casa cierta frescura para un clima caliente como lo es Cuernavaca. tiene mucha iluminación natural.
Foto del Predio antes de iniciar la Construcción. Parte esencial de todo proyecto es visualizar el proyecto con todas las vistas posibles del terreno. El Proyecto se encuentra en la parte mas alta del Campo de Golf, de ahí el nombre de la Casa.
En el Plano Topográfico, podemos observar todos los detalles de desniveles, que nos permiten establecer las alturas del proyecto, así como las vistas a proyectar.
Plantas Arquitectónicas sobre la base de Diseño de privilegiar la Función. sobre la Forma. En este proyecto en particular tenemos restricciones en el predio que "limitan" en cierta medida el diseño.
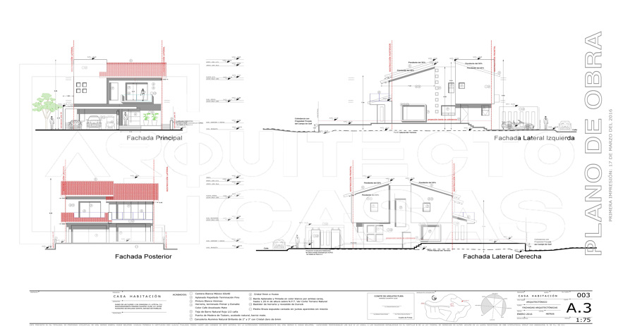
Fachadas del Proyecto. Dadas las condiciones y restricciones, el proyecto permite generar 4 fachadas.
Cortes del Proyecto. Nos permite identificar el juego de losas y alturas del proyecto, así como la solución de terrazas y otros elementos.