Proyecto para Casa habitación de dos niveles el estilo es minimalista y moderno, para el proyecto se busco sacar el máximo provecho a los recursos naturales como la iluminación y ventilación.
Proyecto Casa AR. Vista general de la fachada
Proyecto Casa AR. vista del acceso principal con estancia exterior.
Vista interior del Proyecto Casa AR. Sala comedor donde muestra el aprovechamiento de la iluminación natural
Proyecto Casa AR. Plantas arquitectónicas del proyecto.
Planta Baja del proyecto Casa AR
Planta Alta del proyecto Casa AR
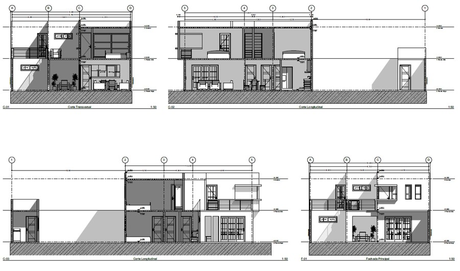
Proyecto Casa AR. Fachada y Cortes arquitectónicos del proyecto