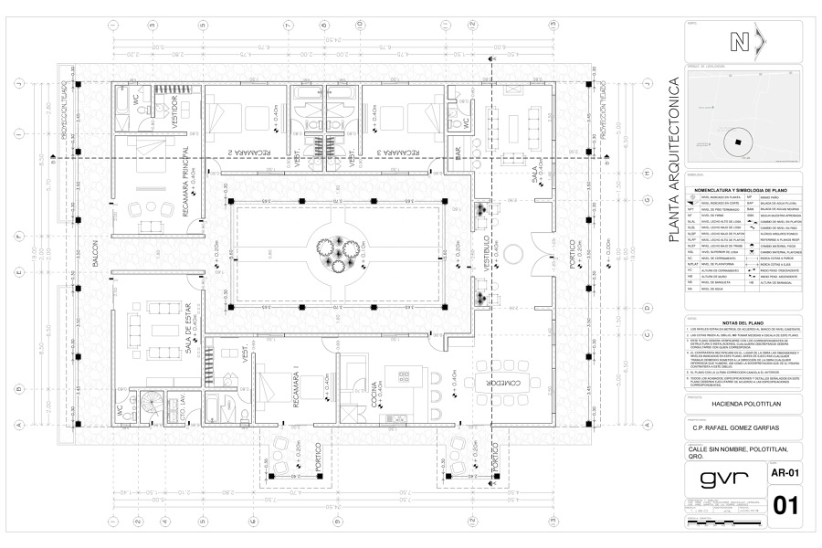
Proyecto realizado completamente, iniciando desde el levantamiento topográfico del terreno, hasta la realización de renders del proyecto terminado.
Cuenta con Proyecto Arquitectónico, Proyecto estructural, Ingenierías Eléctrica, Sanitaria, Hidráulica y Gas.
Ubicado en Polotitlan Edo. Mex.
Render de Proyecto Arquitectónico para hacienda en Polotitlan, Estado de Mexico, Utilizando materiales especificos solicitados por el cliente.