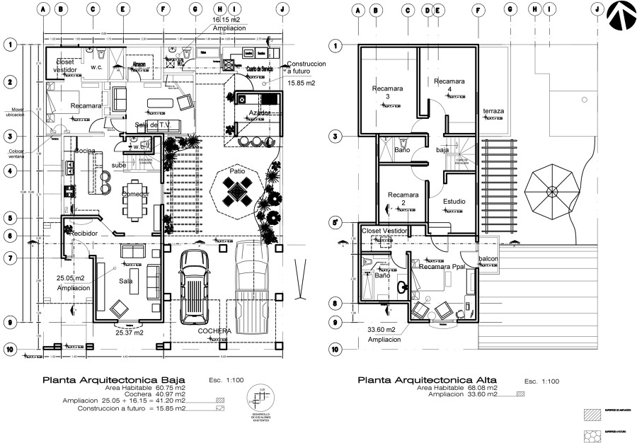
Ampliacion y remodelacion interior y exterior de casa habitacion con sistema de block mas entrepiso y cubierta de vigueta y bovedilla, cochera, cuarto de servicio, asador, cuarto de t.v.
Fachada lateral mostrando la ampliacion hacia el frente de recamara principal
Proyecto de ampliacion de recamara principal y exeriores de casa habitacion Residencial los Laureles
Plantas arquitectonicas conteniendo los cambios de ampliacion en planta baja y alta, asi como exteriores